爱马仕不常有,爱马仕橙常有。如果你单指某一类橙, 没有时尚洗礼,orange也只是juice,而有了爱马仕,一切就大不一样。在充满创造性的家居设计里,它能凭借自带的高级奢华属性,独树一帜引领家居轻奢潮流,俘获所有视线和感官。
无论时尚风潮如何更迭,总有一些经典元素经久不衰,爱马仕橙当属其一。爱马仕的橙色活力热情、时髦奢华,无论是时尚专属还是跨界打造,都备受青睐,是当之无愧的时尚宠儿。
爱马仕橙往往不需要大面积的铺陈,只需要适当的小范围点缀在高级灰背景下,就显得精致灵活,诠释出独特的时尚张力和视觉穿透力。
具有强烈的色彩辨识度,采用高饱和度的爱马仕橙色调,搭配金属、原木、石板、水磨石等元素,规划出简约利落的空间,每个细节都透露着精细品味,依旧还是都可茶饮的那个味道
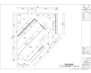
「 平面图 」























